События и Новости Mbsaun

Русская баня 16 кв.м с двумя печами: от проектирования до отделки.

Пожелания клиента и наши задачи

Наш клиент - любитель настоящей русской бани и индивидуального парения. Парную планировал посещать один, поэтому фантазии наших дизайнеров и архитекторов по геометрии и эргономике помещения были безграничны.

Основные пожелания клиента:

Брутальность. Парная должна смотреться серьезно и в тоже время стильно. Материал помещения должен быть благородный и натуральный.
Долговечность. Нередки и посещения парной пар-мастером. Материал должен выдерживать большую нагрузку и механическое воздействие, не теряя внешнего вида.
Функциональность. Обязательное наличие анатомического полка и парильного стола в помещении. А также системы "второе дыхание".

Наша задача:

Реализовать мужественную русскую баню из максимально красивого и долговечного материала. Учесть мощность печи и пространство.
-2

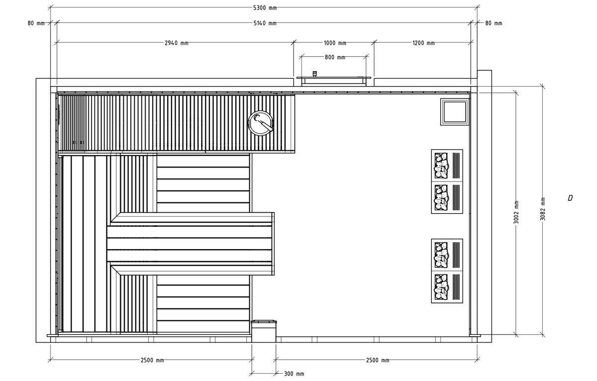
Геометрия и эргономика помещения

Большие размеры помещения 3082ммх5300мм позволили нашим дизайнерам вместить все необходимое: по правой стороне расположился большой анатомический полок, посередине - парильный стол. Слева от входа мы разместили 2 электрические печи.
Такая геометрия помещения идеальна для посещения бани 1-2 людям. Каждый сможет комфортно разместиться на полках лежа или сидя.

Материал

В качестве основного материала мы выбрали прочную и долговечную ольху в комбинации с термированным вариантом.
15-летний опыт работы показал нам, что термоольха - один из самых лучших материалов для отделки бань и саун. Дерево имеет бархатистую текстуру и не портится со временем.
-3


Второе дыхание

В парильный стол мы встроили систему "второе дыхание".
-4
-5
В русской бане стоят две электрические печи.